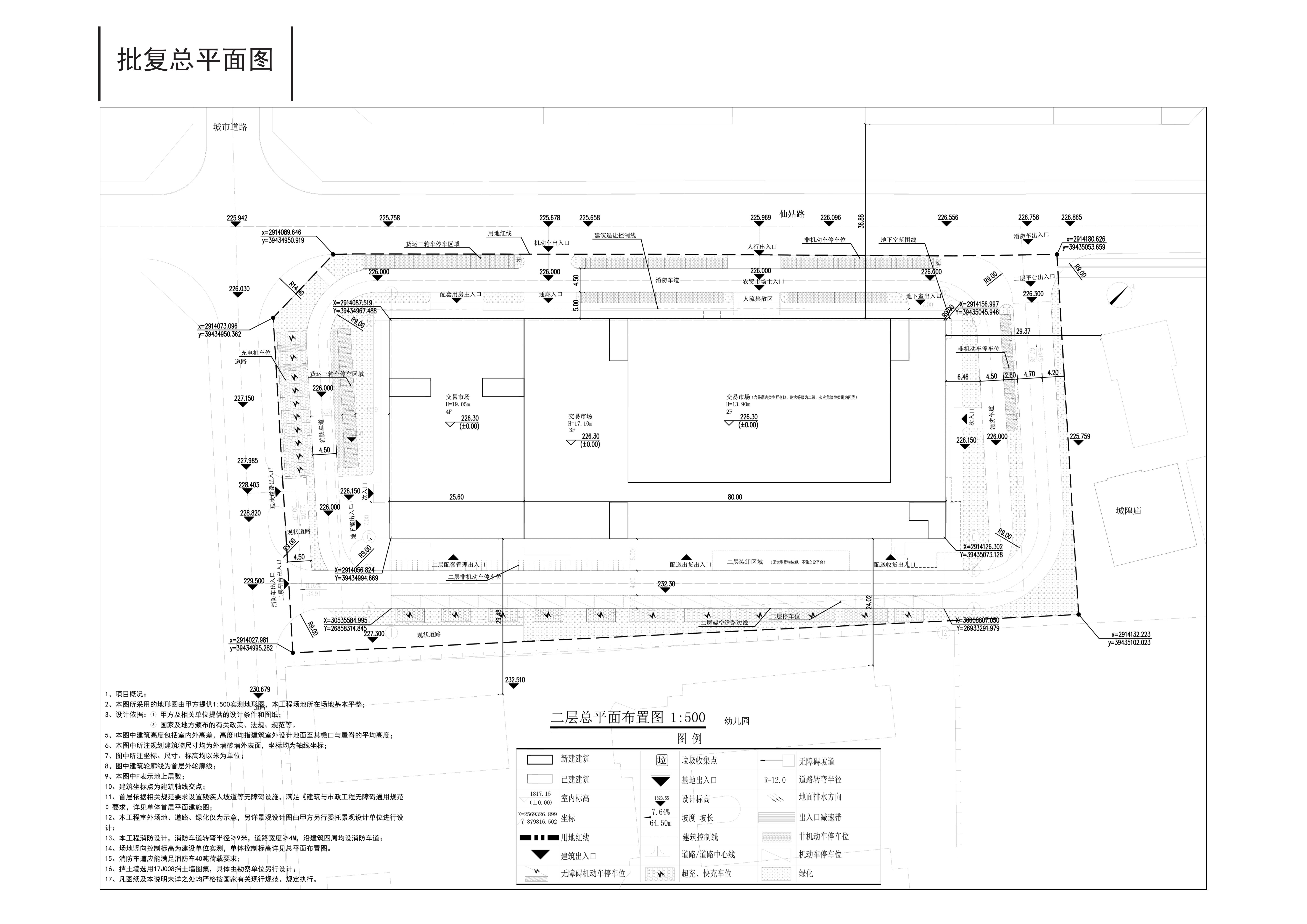
《石城縣城區農產品交易市場改造及新建項目(一期)規劃、建筑設計方案》已經石城縣自然資源局批準實施,規劃建筑方案總平面圖已在施工現場公布。為了讓社會公眾更全面的了解該項目規劃建筑方案情況,現將該項目規劃建筑方案相關內容在我局網站予以公布,歡迎社會公眾監督實施,在規劃實施過程中如有疑問或意見,可向我局進行咨詢反饋。
聯系電話:0797-7182826
意見反饋郵箱:scgh402@163.com
石城縣自然資源局
2025年11月13日













